Case Study Riehenring 120:
Kreislaufwirtschaft einfach und messbar bilanzieren
Wie lässt sich die graue Energie einer bestehenden Messehalle für einen Neubau nutzen? Beim Projekt «Riehenring 120» in Basel setzt Immobilien Basel-Stadt (IBS) auf zirkuläres Bauen. Mit EcoTool wurde die Wiederverwendung von Bauteilen direkt in die ökologische Bewertung der Wettbewerbsentwürfe integriert.
Eine Partnerschaft für praxisnahe Lösungen
Immobilien Basel-Stadt hat die Entwicklung von EcoTool von Beginn an eng begleitet. Ziel dieser Zusammenarbeit war es, ein Werkzeug zu schaffen, das die ambitionierten Klimaziele des Kantons praxisnah in die Planungs- und Wettbewerbsprozesse übersetzt.
Ein wichtiger Schritt dieser Kooperation ist die Integration eines ReUse-Faktors: In einem vom Bundesamt für Wohnungswesen (BWO) geförderten Projekt wurde zusammen mit der IBS und Zirkular eine Methode entwickelt, um die Wiederverwendung bestehender Bauteile in EcoTool abzubilden. Der Wettbewerb am Riehenring 120 war eines der ersten Projekte, bei dem den Teams ein entsprechender ReUse-Katalog zur Verfügung gestellt wurde.
Zweistufiger Prozess: Fokus auf die Bereinigung
Der Wettbewerb wurde über zwei Stufen durchgeführt. Nach einer ersten Selektionsrunde wurden drei Teams zur Bereinigung ihrer Entwürfe eingeladen.
In dieser Phase bot EcoTool die Möglichkeit, das Kriterium der ökologischen Nachhaltigkeit fundiert zu bewerten: Die Teams bildeten ihre optimierten Konzepte erneut ab, wodurch die Jury die Fortschritte – insbesondere beim Einsatz von ReUse-Bauteilen – besser nachvollziehen und in die Gesamtabwägung einbeziehen konnte.
Zudem entstehen auf dem Areal ein Doppelkindergarten, eine Tagesstruktur und Gewerberäume. Darüber hinaus werden rund 200 Parkplätze für Mietende und das Quartier realisiert.
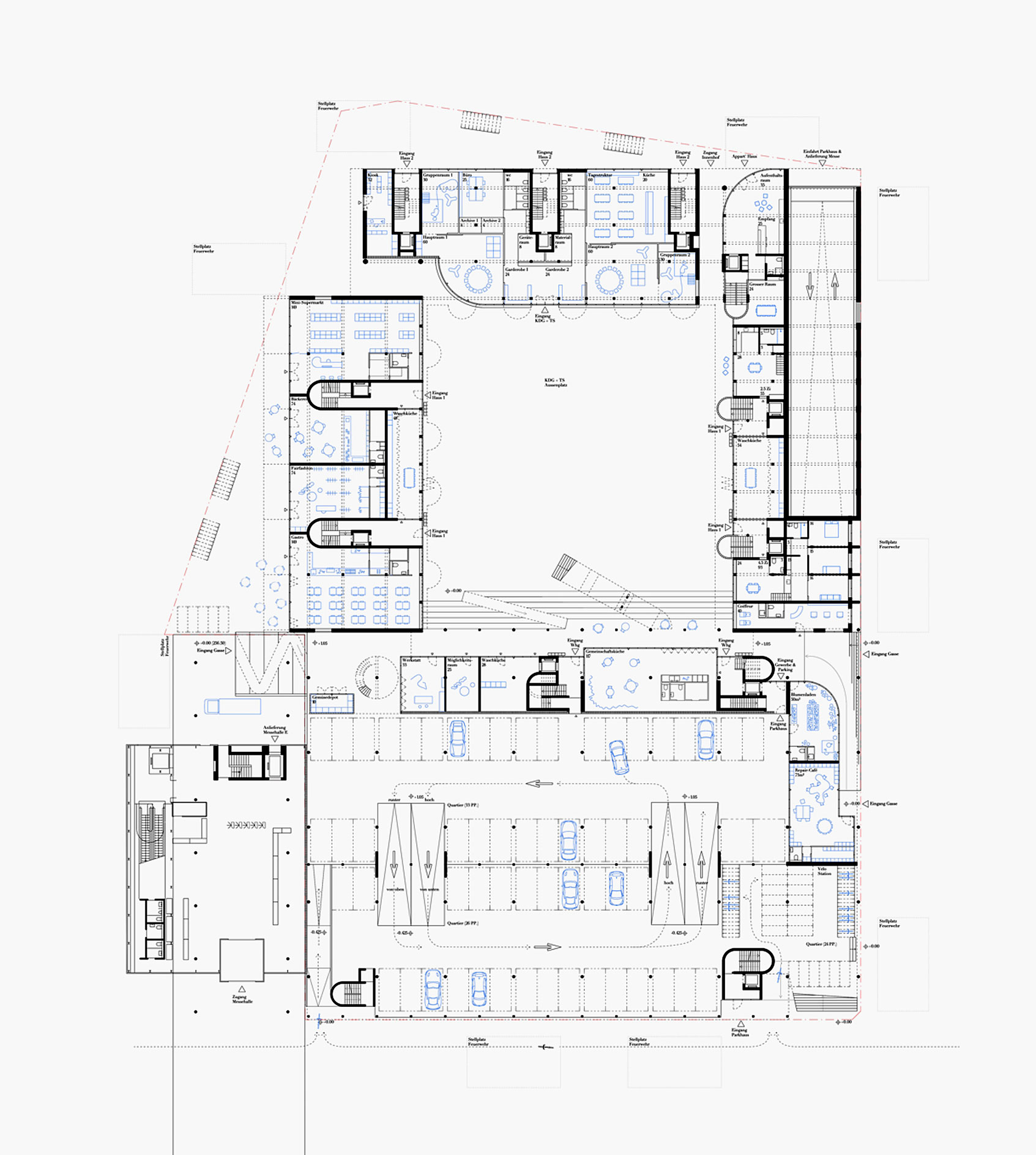
Das Siegerprojekt: Ressourceneffizienz durch Erhalt
Der Entwurf der Arbeitsgemeinschaft Clauss Kahl Merz Atelier für Architektur+Städtebau und Truwant + Rodet + überzeugt durch eine hohe Kompaktheit und ein intelligentes Tragwerk.
Ein wesentlicher Nachhaltigkeitsaspekt des Siegerprojekts ist der weitgehende Erhalt der unterirdischen Baumasse. Anstatt den Bestand komplett rückzubauen, wird die vorhandene Struktur des Untergeschosses in den Neubau integriert. Zusammen mit dem hohen Holzanteil in den Obergeschossen und dem gezielten Einsatz von ReUse-Materialien der ehemaligen Messehalle erzielt das Projekt gute Werte in der Ökobilanz.
«Die Nutzung von EcoTool im Wettbewerbsprozess war für uns sehr aufschlussreich, da das Tool zu einem hilfreichen Element in der Diskussion wurde. Es ist ein wichtiges Signal: Nachhaltigkeit muss in der frühen Phase verankerbar sein, und EcoTool ist dafür ein passendes Instrument.»
Erkenntnisgewinn durch einfache Handhabung
Trotz der zusätzlichen Komplexität, die das Thema Kreislaufwirtschaft mit sich bringt, bleibt die Anwendung von EcoTool intuitiv. Für die Bauherrschaft ist diese Effizienz wichtig, um ökologische Aspekte ohne hohen administrativen Aufwand in das Verfahren zu integrieren.
«Die Architekturteams gewinnen bereits während des Entwurfs Erkenntnisse zu nachhaltigen Bauweisen. Das führt für uns als Bauherrschaft zu fundierteren Einreichungen, die unsere Klimaziele bereits in einer frühen Phase abbilden.»
Fazit: Die Zukunft des Bauens ist zirkulär
Das Projekt Riehenring 120 zeigt, dass Kreislaufwirtschaft steuerbar ist. Durch die Vorgabe von Zielwerten und das Bereitstellen eines digitalen ReUse-Katalogs schafft die IBS Klarheit für die Planenden. EcoTool fungiert dabei als das Bindeglied, das den ökologischen Wert von Bestandsmaterialien sichtbar und planbar macht.
Weitere Informationen zum Projekt direkt bei Clauss Kahl Merz Atelier für Architektur
Messbare Nachhaltigkeit
EcoTool wird in realen Projekten eingesetzt – von der frühen Planung bis zur Entscheidungsfindung.
Architekt/innen: Jetzt starten & Varianten vergleichen
Bauherrschaften: EcoTool als Entscheidungsgrundlage nutzen


